Linda McCabe and Erin McCabe with Coldwell Banker Island Properties - 808-225-1048

MLS: 202607968     $628,450
2 Bedrooms with 2 Baths

MLS: 202607968 Condo For Sale
91-3529 NANA HOPE STREET 3302
EWA BEACH HI 96706

MLS:  202607968
Status:  ACTIVE
List Price:  $628,450
Price per SQFT:  $673
Square Footage:  934

2 Bedrooms
2 Baths
Year Built:  2026
Zip Code:  96706

 

Listing Remarks

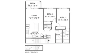
This two story, two bedroom, two bathroom condominium offers 934 square feet of net living area. Upon entering the home, you are welcomed by the staircase that leads you to the kitchen featuring an island, stainless steel appliances, and white soft-close cabinetry. Beyond the kitchen is an open concept living room, perfect for everyday living and entertaining. Just off the living area, the lanai provides relaxing space to enjoy fresh air and the outdoors. Down the hallway, you’ll find the laundry area, secondary bedroom with a mirrored sliding door closet, and bathroom featuring a vanity and shower-tub combination across the hall. Additionally, the primary bedroom with a mirrored sliding-door closet, and ensuite bathroom with a vanity sink and combined bathtub and shower help complete the home. Split air conditioning and modern appliances including a range/oven, micro-hood, dishwasher, refrigerator, and washer/dryer add comfort and convenience for easy living.

Address: 91-3529 NANA HOPE STREET 3302 EWA BEACH HI 96706

Listing Courtesy of D R HORTON HAWAII, LLC

Condo Mania Agent

Featured Real Estate Agent Linda McCabe

Linda McCabe

Coldwell Banker Island Properties
REALTOR®
Phone: 808-225-1048

Contact Us

Request More Information

Listing Photos

Photo #2: 202607968 Listing
Photo #3: 202607968 Listing
Photo #4: 202607968 Listing
Photo #5: 202607968 Listing
Photo #6: 202607968 Listing

View All Photos

Listing Details

STATUS:Active
SPECIAL LISTING CONDITIONS:None
LISTING CONTRACT DATE:2026-04-21
BEDROOMS:2
BATHROOMS FULL:2
BATHROOMS HALF:0
LIVING AREA SQ FT:934
BUILDING AREA TOTAL:934
YEAR BUILT:2026
HOA FEES:$88
ARCHITECTURAL STYLE:MultiLevel
BUILDING NAME:Uluwehi at Hoopili
CONSTRUCTION:SteelFrame, WoodFrame
COMMUNITY FEATURES:CommunityPool, DogPark, Playground
FLOORING:Carpet, Vinyl
PARKING FEATURES:Assigned, TwoSpaces
PROPERTY TYPE:Residential
PROPERTY SUB TYPE:Condominium
VIEW:None
LISTING AGENT:JUSTIN F GAMBOA
LISTING OFFICE:D R HORTON HAWAII, LLC
LISTING CONTACT:(808) 521-5661

Estimated Monthly Payments

List Price:$628,450
20% Down Payment:$125,690
Loan Amount:$502,760
Loan Type:30 Year Fixed
Interest Rate:6.5 %
Monthly Payment:$3,178

Estimate does not include taxes, fees, insurance.

Request More Information

Property Location: 91-3529 NANA HOPE STREET 3302 EWA BEACH HI 96706


Blue Marker: This Listing               Red Marker: Active Listings Nearby

Nearby Active Listings Within: 0.25 mi

MLS # List PriceAddressBedsBaths Sq FtCommunity
202607964 $489,950 91-3529 NANA HOPE STREET 3204 1 1 591
202607956 $670,450 91-3529 NANA HOPE STREET 3107 3 2 1056
202607962 $626,450 91-3529 NANA HOPE STREET 3305 2 2 933
202607979 $552,950 91-3529 NANA HOPE STREET 4206 2 2 870
202607966 $626,450 91-3529 NANA HOPE STREET 3306 2 2 933
202607951 $670,450 91-3529 NANA HOPE STREET 3102 3 2 1056
202607970 $516,450 91-3529 NANA HOPE STREET 3303 1 1 653
202607977 $628,450 91-3529 NANA HOPE STREET 3308 2 2 934
202607963 $486,450 91-3529 NANA HOPE STREET 3310 1 1 572
202606843 $620,000 91-3475 NANA HOPE STREET 812 2 2 931 HINAHINA AT HOOPILI

Condo Mania Agent

Featured Real Estate Agent Erin McCabe

Erin McCabe

Coldwell Banker Island Properties
Real Estate Associate
Phone: 808.485.9955

Contact Us

Logo for Fair Housing ActThe Fair Housing Act prohibits discrimination in housing based on color, race, religion, national origin, sex, familial status, or disability.

Based on information from the Multiple Listing Service of Hicentral MLS, Ltd. Information is deemed reliable but not guaranteed. Copyright © 2026 by HiCentral MLS, Ltd.

Some of the active listings appearing on this site may be listed by other REALTORS®. If you are interested in those active listings, our company may represent you as the buyer's agent. If the active listing you are interested in is our company’s active listing, you may speak to one of our agents regarding your options for representation.

Information Deemed Reliable But Not Guaranteed. The information being provided is for consumer's personal, non-commercial use and may not be used for any purpose other than to identify prospective properties consumers may be interested in purchasing. This information, including square footage, while not guaranteed, has been acquired from sources believed to be reliable.

Last Updated: 2026-04-21